Approved by EN 12975-2-2006,CE and Solar Keymark Certified
Temperature resitant up to 200°c
Case made of aluminum profile
Rear wall made of stucco sheet
Solar safety glass(SPF-certified)
Insulation:the base is insulated with 60 mm rock wool,the frame with 20mm
The Solar energy absorption plate is equipped with a special coating,increasing the solar heat absorption to nearly 100%
Heat transport via meander and two continuous collectiong pipes
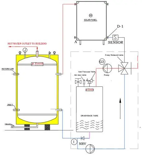
Complete installation is delivered in one package including the assembly materials and temperature sensors.Drain back solar fluid system,panel mounted.
Prevention of overheating of the solar heating fluid.
Supplied in combination with a solar master control system,integrating collectors,pumps,hot water storage and back-up heating in one carefully balanced solar heating system for potable water.